Robert Wilson Estate Agents (Moira)

Building Site, 200m West Of, 53 Gregorlough Road, Dromore BT25 1RR

Building Site (with FPP) For Sale

Asking price £250,000

Print additional images & map (disable to save ink)

Photo 1 of Building Site, 200m West Of, 53 Gregorlough Road, Dromore

Telephone:

028 9261 3100

View Online:

www.robertwilson.co.uk/1027019

Key Information

Address Building Site, 200m West Of, 53 Gregorlough Road, Dromore
Price Asking price £250,000
Land type Building Site (with FPP)
Size 1 acres
Planning Full Planning Permission
Status For sale

Additional Information

  • We are delighted to offer to the market this superb building site with full planning granted for an approximately 4,700 square foot detached dwelling and garage on the much sought after Gregorlough Road 
  • Planning Reference – N/2008/0324/RM  
  • Site c. 1 acre  
  • Certificate of Lawful Development obtained  

Located in the scenic country side of Co Down and just 3.5 miles to Moira and a 15 minute drive to Hillsborough, this extensive site offers the perfect blend of tranquillity and convenience, making it a perfect choice for those seeking an idyllic countryside lifestyle without sacrificing urban amenities.

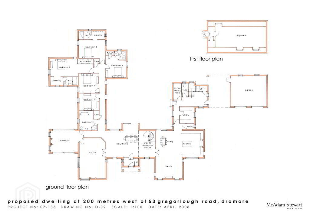
Planning has been granted and plans drawn up for a beautiful, detached 5 bedroom home and a large garage. Accommodation includes, spacious hall/dining area, lounge, open plan kitchen/dining/family area, sunroom, utility room, wc, 5 bedrooms, three of which have ensuites and two of which have dressing rooms, family bathroom and a garage with a playroom above.

Excellent transportation links are close by with access to the A1 dual carriageway and the M1 providing access to Belfast in 20 minutes and Dublin in 1 hour and 30 minutes.

  • Robert Wilson

    Robert Wilson Estate Agents (Moira)

    028 9261 3100

Photo Gallery

Photo 1 of Building Site, 200m West Of, 53 Gregorlough Road, Dromore Photo 2 of Building Site, 200m West Of, 53 Gregorlough Road, Dromore Photo 3 of Building Site, 200m West Of, 53 Gregorlough Road, Dromore Floorplan 1 of Building Site, 200m West Of, 53 Gregorlough Road, Dromore Photo 4 of Building Site, 200m West Of, 53 Gregorlough Road, Dromore Photo 5 of Building Site, 200m West Of, 53 Gregorlough Road, Dromore Photo 6 of Building Site, 200m West Of, 53 Gregorlough Road, Dromore Photo 7 of Building Site, 200m West Of, 53 Gregorlough Road, Dromore

Visit www.robertwilson.co.uk for further details.