Robert Wilson Estate Agents (Moira)

Lands Approx 55m, South 23, Lurganville Road, Moira BT67 0PN

Building Site (with FPP) For Sale

Price £155,000

Print additional images & map (disable to save ink)

Photo 1 of Lands Approx 55m, South 23, Lurganville Road, Moira

Telephone:

028 9261 3100

View Online:

www.robertwilson.co.uk/1035717

Key Information

Address Lands Approx 55m, South 23, Lurganville Road, Moira
Price £155,000
Land type Building Site (with FPP)
Size 0.75 acres
Planning Full Planning Permission
Status For sale

Additional Information

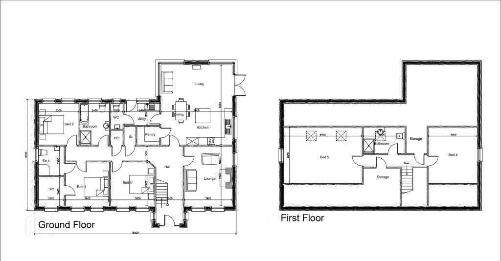
Discover a rare opportunity to acquire a prime building site with approved Full Planning Permission, nestled in an excellent location between the charming villages of Moira and Hillsborough.  With full planning approval already in place, this site represents a seamless path to development, allowing you to capitalise on a serene yet well-connected setting.

Situated in the peaceful border area between Moira and Hillsborough, the site benefits from the best of both worlds. Moira offers a tranquil rural lifestyle with local amenities, schools, and friendly community spirit, while Hillsborough provides a vibrant village atmosphere with boutique shops, cafes, and easy access to main transport routes. Commuters will appreciate the convenient road links, offering quick journeys to larger urban centres such as Lisburn and Belfast, ensuring an effortless balance between countryside calm and city accessibility.

The approved plans ensure that essential services and infrastructure are in place or accessible, streamlining the building process. This enables you to focus on personalising the interior and exterior, whether you envision an expansive open-plan kitchen and living area, tranquil bedrooms with ample storage, or reception rooms that cater to both family living and entertaining guests. The scope for gardens, outdoor spaces, and parking facilities further enhances the appeal of this property.

In summary, this building site represents a unique chance to develop a bespoke family home tucked away in a peaceful yet accessible location. With planning matters resolved, the groundwork has been laid for a smooth development journey. Whether you are a first-time developer, an experienced builder, or an individual looking to create a dream home from scratch, this property promises excellent potential in a highly desirable setting.

All drawing are passed by Building Control and fees paid

Map is for ID purposes only

  • Robert Wilson

    Robert Wilson Estate Agents (Moira)

    028 9261 3100

Photo Gallery

Photo 1 of Lands Approx 55m, South 23, Lurganville Road, Moira Photo 2 of Lands Approx 55m, South 23, Lurganville Road, Moira Photo 3 of Lands Approx 55m, South 23, Lurganville Road, Moira Photo 4 of Lands Approx 55m, South 23, Lurganville Road, Moira Photo 5 of Lands Approx 55m, South 23, Lurganville Road, Moira Photo 6 of Lands Approx 55m, South 23, Lurganville Road, Moira Photo 7 of Lands Approx 55m, South 23, Lurganville Road, Moira

Visit www.robertwilson.co.uk for further details.