Robert Wilson Estate Agents (Moira)

Land Adjacent To 51, Glenavy Road, Lisburn BT28 3XD

Potential Building Site For Sale

Price £100,000

Print additional images & map (disable to save ink)

Photo 1 of Land Adjacent To 51, Glenavy Road, Lisburn

Telephone:

028 9261 3100

View Online:

www.robertwilson.co.uk/1037982

Key Information

Address Land Adjacent To 51, Glenavy Road, Lisburn
Price £100,000
Land type Potential Building Site
Status For sale

Additional Information

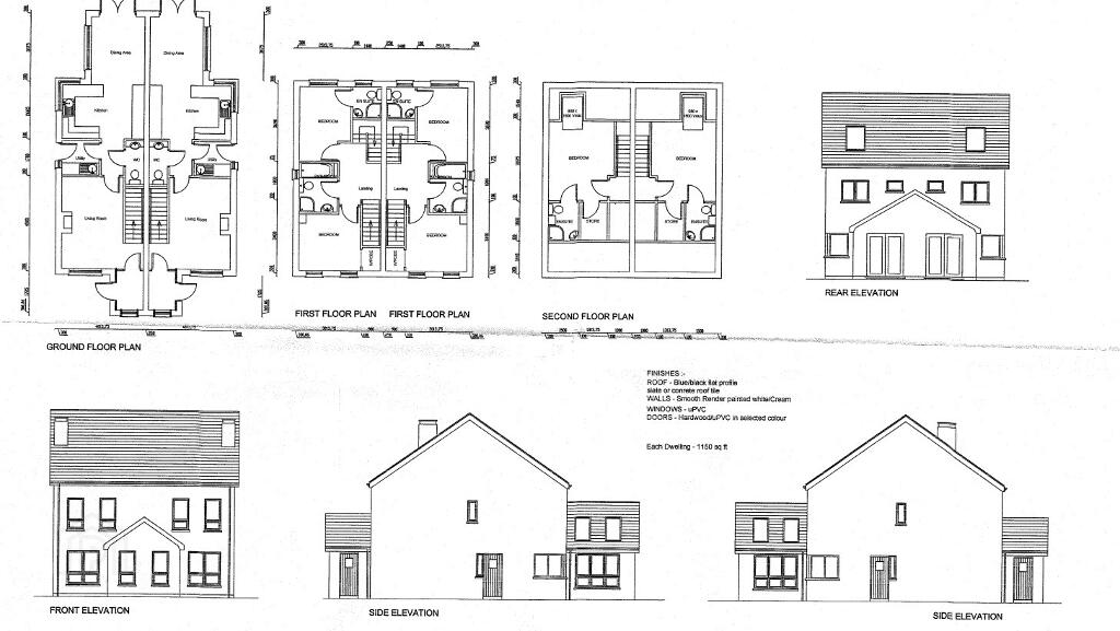
Development Opportunity – Semi-Rural Location

A fantastic opportunity to acquire a parcel of land with full potential for the construction of two stylish semi-detached homes, each benefiting from their own detached garages. Set in a desirable semi-rural location, the site offers the perfect balance of countryside charm and modern convenience, with open surroundings and excellent transport links close by.

This is an ideal project for developers, self-builders, or those seeking to create bespoke family homes in a peaceful yet well-connected setting.

*Boundary fence will be erected by purchaser

Planning Ref: S/2012/0148/F

  • Robert Wilson

    Robert Wilson Estate Agents (Moira)

    028 9261 3100

Photo Gallery

Photo 1 of Land Adjacent To 51, Glenavy Road, Lisburn Photo 2 of Land Adjacent To 51, Glenavy Road, Lisburn

Visit www.robertwilson.co.uk for further details.