Robert Wilson Estate Agents (Moira)

69 Glenhead Avenue, Dunmurry BT17 9AX

3 Bed Mid-terrace House For Sale

Sale Agreed £189,950

Print additional images & map (disable to save ink)

Photo 1 of 69 Glenhead Avenue, Dunmurry

Telephone:

028 9261 3100

View Online:

www.robertwilson.co.uk/1042493

Key Information

Address 69 Glenhead Avenue, Dunmurry
Price Last listed at Asking price £189,950
Style Mid-terrace House
Bedrooms 3
Receptions 1
Bathrooms 1
Heating Oil
EPC Rating D57/C72
Status Sale Agreed

Additional Information

  • 3 bed mid-terrace  
  • Newly renovated throughout  
  • Oil-fired central heating  
  • Double-glazed windows  
  • Access to communal parking and garage block  

Nestled in a beautiful natural setting with serene forest views and the gentle sound of a nearby waterfall, 69 Glenhead Avenue offers the perfect blend of modern living and tranquil surroundings. This newly renovated mid-terrace home is ideal for families, first-time buyers or anyone seeking a peaceful retreat within easy reach of local amenities and transport links.

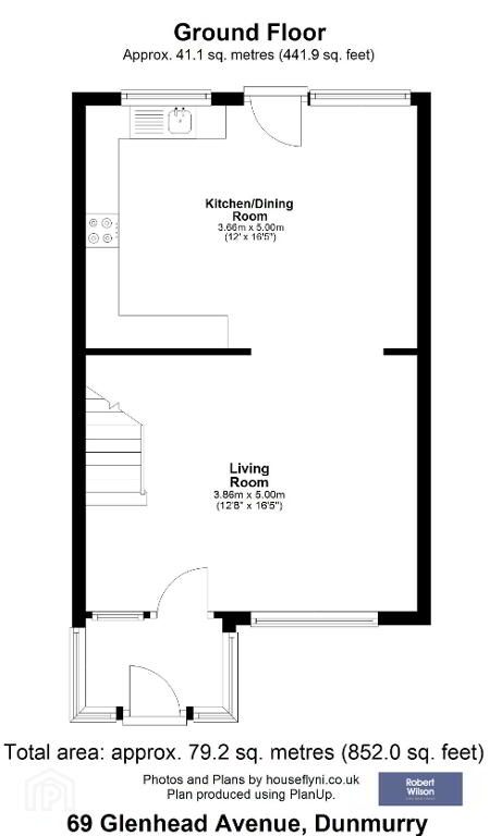
Ground Floor

Step through the entrance porch, featuring a hardwood front door with glazed panels, into a bright and welcoming lounge. The space benefits from a feature fireplace, staircase, under-stairs storage and double panel radiator.

The open-plan kitchen and dining area have been newly fitted with a contemporary range of high and low-level units, laminate worktops and modern appliances including an eye-level oven, ceramic hob with extractor and integrated fridge-freezer. There’s space and plumbing for a washing machine, plus recessed lighting and a rear door leading to the garden.

First Floor

Upstairs features three well-proportioned bedrooms, each with built-in storage and radiators. The modern bathroom includes a white suite with low flush WC, pedestal wash hand basin, and panel bath with a Triton electric shower over, complemented by tiled walls and floor.

Outside

To the front, a neat lawn and pathway welcome you home. The fully enclosed rear garden offers both a patio and lawn area with a rear gate for added convenience.

Communal parking spaces are available nearby, along with a private garage included with the property.

Ground Floor

Entrance Porch

Hardwood front door with glazed panels. uPVC door to lounge

Lounge

4m x 5.10m (13' 1" x 16' 9") Staircase to first floor, under stairs storage, double panel radiator.

Kitchen / Dining Area

5m x 3.65m (16' 5" x 12' 0") Newly installed kitchen with range of high and low level units, laminate worktop, 1 1/2 stainless steel sink unit, eye level single oven, 4 ring ceramic hob with extractor over, integrated fridge freezer, space an plumbed for washing machine, vertical radiator, double panel radiator and recessed lighting.
Rear door to garden.

First floor

Landing

Access to roof space

Bedroom 1

2.98m x 3.02m (9' 9" x 9' 11") Single panel radiator, built in wardrobe

Bedroom 2

Single panel radiator, built in wardrobe, hotpress off.

Bedroom 3

Single panel radiator, built in storage

Bathroom

1.95m x 1.95m (6' 5" x 6' 5") White suite comprising; low flush w.c., pedestal wash hand basin, panel bathtub with 'Triton' electric shower over, shaver socket, tiled walls, tiled floor, extractor fan and single panel radiaitor.

Outside

Garden

Front garden in lawn with pathway.
Rear garden fully enclosed with patio and lawn, rear gate.

Garage

Garage situated in parking area

  • Robert Wilson

    Robert Wilson Estate Agents (Moira)

    028 9261 3100

Photo Gallery

Photo 1 of 69 Glenhead Avenue, Dunmurry Photo 2 of 69 Glenhead Avenue, Dunmurry Photo 3 of 69 Glenhead Avenue, Dunmurry Photo 4 of 69 Glenhead Avenue, Dunmurry Photo 5 of 69 Glenhead Avenue, Dunmurry Photo 6 of 69 Glenhead Avenue, Dunmurry Photo 7 of 69 Glenhead Avenue, Dunmurry Photo 8 of 69 Glenhead Avenue, Dunmurry Photo 9 of 69 Glenhead Avenue, Dunmurry Photo 10 of 69 Glenhead Avenue, Dunmurry Photo 11 of 69 Glenhead Avenue, Dunmurry Photo 12 of 69 Glenhead Avenue, Dunmurry Photo 13 of 69 Glenhead Avenue, Dunmurry Photo 14 of 69 Glenhead Avenue, Dunmurry Photo 15 of 69 Glenhead Avenue, Dunmurry Photo 16 of 69 Glenhead Avenue, Dunmurry Photo 17 of 69 Glenhead Avenue, Dunmurry Photo 18 of 69 Glenhead Avenue, Dunmurry Photo 19 of 69 Glenhead Avenue, Dunmurry Photo 20 of 69 Glenhead Avenue, Dunmurry Photo 21 of 69 Glenhead Avenue, Dunmurry Photo 22 of 69 Glenhead Avenue, Dunmurry Photo 23 of 69 Glenhead Avenue, Dunmurry Photo 24 of 69 Glenhead Avenue, Dunmurry Photo 25 of 69 Glenhead Avenue, Dunmurry Photo 26 of 69 Glenhead Avenue, Dunmurry Photo 27 of 69 Glenhead Avenue, Dunmurry Photo 28 of 69 Glenhead Avenue, Dunmurry Photo 29 of 69 Glenhead Avenue, Dunmurry Floorplan 1 of 69 Glenhead Avenue, Dunmurry Floorplan 2 of 69 Glenhead Avenue, Dunmurry Floorplan 3 of 69 Glenhead Avenue, Dunmurry Floorplan 4 of 69 Glenhead Avenue, Dunmurry Photo 30 of 69 Glenhead Avenue, Dunmurry

Visit www.robertwilson.co.uk for further details.